Sleeps: 4 people
Sleeping arrangements:
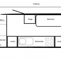
Fixed Semi-oval Double Bed (4’” wide x 6’5” long /1.20 cm wide x 2m long) at rear
Semi-oval Double Bed (4’6” wide x 6’5” long /1.40 cm wide x 2m long) at front, converted from dinette
Open plan layout with:
Side bathroom
Galley kitchen
Dinette seating at front, converts to double bed.
L-Shaped sofa at rear, converts to double bed (although can be left fixed)
Airstream interior dimensions: 19 feet long (5.6 meters), 7’0” wide (2.2 m), 6’5” high (2 m)
Bathroom:
Wash hand basin with large vanity mirror
Heated towel rail
Thetford flushing toilet
Extractor fan
Kitchen:
Thetford oven / grill with four-burner auto-ignition gas hob
Fridge (110 litres) with icebox
Extensive Corian granite worktop with inset sink and drainer
Overhead extractor fan
All pans, crockery, (plastic) glasses & cutlery provided
Living area:
Dinette with large table (4’” long x 2’ wide / 125cm x 60cm) with wraparound seating for 4/6; converts to double bed
L-Shaped sofa at rear, converts to double bed
Wardrobe
Overhead lighting & reading lights
Thermostatically-controller Underfloor heating
Outside:
Large awning
Table and chairs







